세계적인 신제품
Vacu Easylift (에어 발란스)는 성능이 이미 전세계에서 확인되었고 작동에 대한 신뢰도도 높아 여러분의 회사에 경제적인 기여를 할 것입니다. 지금까지 10,000대 이상이 사용되고 있으며 Vacu Easylift (에어 발란스)는 이 분야에서 대부분의 시장을 점유하고 있습니다.
독창적인 아이디어
Vacu Easylift (에어 발란스)는 독창적인 아이디어에 입각하고 있으며 물체를 흡입하여 들어올리는 진공 흡착 방법을 채택하고 있습니다. 이 기계의 구조는 Vacu Tube와 흡입 Head와 흡착패드, air hose, 진공펌프와 필터 등으로 구성되어 있습니다.
펌프의 위치는 들어올려지는 제품의 30m 이내에 위치에 있어야 합니다. Lifting hose로 통하는 공기의 양은 수동으로 조절되어지며 이때 압력의 하락은 제품을 집어서 들어올리며, 반대로 압력의 상승은 물건을 내리도록 하는 것입니다. 또한 lift tube 위쪽에 장치되어 있는 공기흡입 전환장치는 제품을 들어올린 후 360° 회전을 가능하게 합니다.
안전장치
흡착패드는 제품이 바닥에 닿을 때까지 들어 올려지는 힘이 줄지 않고 정전시 Back Valve가 닫혀지면서 제품이 부드럽게 내려질 수 있게 되어 있습니다.
유용성
Vacu Easylift (에어 발란스)는 무게가 120Kg까지는 그 물건의 크기, 형태에 관계없이 대부분의 물건을 들어올릴 수 있습니다. (마분지상자, 철판, 판자, 양철깡통, 자루…)
이 기계의 체제는 다양한 견인장치와 광범위한 범위의 흡착 PAD와 모든 견인이 필요한 작업에 최대한으로 활용할 수 있는 기타 장치로 되어 있습니다. Vacu Easylift는 모든 분야의 작업에서 제품을 들어올리고 옮기는 일을 안전하고 효과적으로 할 수 있으며 특히 생산, 창고 적재들에 편리합니다. 또한 스테인레스 스틸로 되어있는 Vacu Easylift (에어 발란스)는 부식되기 쉬운 환경과 식품 제조업 같은 위생적인 업체에도 유용히 사용될 수 있습니다.(주문사양)
























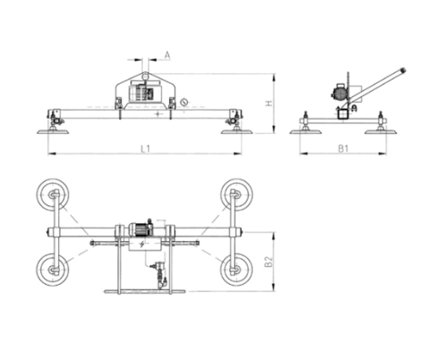
철판, 스텐레스판, 알미늄판 이송의 강자 VacuBoy
각종 철판의 표면을 흡착하여 이송 적재하는 시스템. 스텐철판 이송, SUS 철판 이송, 레이저 절단기, 샤링기, 절곡기, 스리팅, 펀칭기, 워터젯 등 각종 가공기기의 철판 이송
| 가반하중 (kg) |
모델명 | 철판사양 / 최소두께 (mm) |
진공작동 | 진공펌프 | 자체하중 (kg) |
외형치수 (mm) | ||||
|---|---|---|---|---|---|---|---|---|---|---|
| L1 | B1 | B2 | H | A | ||||||
| 250 | VB 60/4 | 2500 x 1250 x 3 | 수동 | T 4.4 | 50 | 1800 | 800 | 650 | 470 | 80 |
| VB 60/8 | 2500 x 1250 x 1 | 수동 | T 4.4 | 50 | 1800 | 800 | 650 | 470 | 80 | |
| 500 | VB 80/4 | 3000 x 1500 x 3 | 수동 | T 4.4 | 70 | 2400 | 800 | 650 | 470 | 80 |
| VB 80/8 | 3000 x 1500 x 1 | 수동 | T 4.8 | 80 | 2400 | 800 | 650 | 470 | 80 | |
| 750 | VB 100/4 | 3000 x 1500 x 3 | 수동 | T 4.8 | 140 | 2400 | 1200 | 900 | 570 | 80 |
| VB 80/6 | 3000 x 1500 x 1 | 수동 | T 4.8 | 85 | 2400 | 1200 | 900 | 570 | 80 | |
| 1000 | VB 100/6 | 4000 x 2000 x 3 | 수동 | T 4.16 | 180 | 2400 | 1200 | 900 | 570 | 80 |
| VB 100/8 | 4000 x 2000 x 1 | 수동 | T 4.16 | 230 | 2400 | 1200 | 900 | 570 | 80 | |
| 1500 | VB 100M/8 | 6000 x 2000 x 4 | 전동 | T 4.25 | 250 | 3000 | 1200 | 900 | 570 | 80 |
| VB 100M/12 | 6000 x 2000 x 1 | 전동 | T 4.25 | 300 | 3000 | 1200 | 900 | 570 | 80 | |
| 2000 | VB 100M/12 | 6000 x 2000 x 4 | 전동 | T 4.25 | 320 | 3000 | 1200 | 900 | 570 | 80 |
| VB 100M/16 | 6000 x 2000 x 1 | 전동 | T 4.25 | 360 | 3000 | 1200 | 900 | 570 | 80 | |
VacuBoy 60 : 250kg용 / VacuBoy 80 : 500kg용

VacuBoy 80 : 750kg용 / VacuBoy 100 : 1000kg~2000kg용

| 납 품 처 | 작 업 공 정 내 용 | 비 고 (모델 / 수량) |
|---|---|---|
| 태광산업 | CONVEYOR로 부터 BOX적재 작업 라인 | VACU-EASYLIFT VM-160 1 SET |
| 롯데알미늄 | CONVEYOR로 부터 BOX적재 작업 라인 | VM-160 1 SET |
| (주) 대농 | CONVEYOR로 부터 BOX적재 작업 라인 | VM-160 1 SET |
| 대도화섬 | BOX적재 작업 라인 및 상하차 라인 | VM-180 2 SET |
| 삼한화섬 | CONVEYOR로 부터 BOX적재 작업 라인 | VM-180외 2 SET |
| 세기섬유 | CONVEYOR로 부터 BOX적재 작업 라인 | VM-160 1 SET |
| (주) 코오롱 | CONVEYOR로 부터 BOX적재 작업 라인 | VM-120 1 SET |
| (주) 선경 | CONVEYOR로 부터 BOX적재 작업 라인 | VM-160 6 SET |
| 한국합섬 | CONVEYOR로 부터 BOX적재 작업 라인 | VM-180 1 SET |
| 태창섬유 | CONVEYOR로 부터 BOX적재 작업 라인 | VM-160 1 SET |
| 오복식품 | CONVEYOR로 부터 BOX적재 작업 라인 | VM-160 1 SET |
| 동아식품 | CONVEYOR로 부터 BOX적재 작업 라인 | VM-160 1 SET |
| 광동제약 | CONVEYOR로 부터 BOX적재 작업 라인 | VM-160 1 SET |
| 삼일제약 | CONVEYOR로 부터 BOX적재 작업 라인 | VM-160 1 SET |
| 상아제약 | CONVEYOR로 부터 BOX적재 작업 라인 | VM-160 1 SET |
| 동서식품(주) | CONVEYOR로 부터 BOX적재 작업 라인 | VM-160 1 SET |
| 대성셀틱 | CONVEYOR로 부터 BOX적재 작업 라인 | VM-160 1 SET |
| 제일철강 | CONVEYOR로 부터 BOX적재 작업 라인 | VM-160 1 SET |
| 미창섬유 | CONVEYOR로 부터 BOX적재 작업 라인 | VM-160 1 SET |
| (주)금호 | 고무 원료 이송 라인 | VM-160 15 SET |
| 금호이피고무(주) | 고무 원료 이송 라인 | VM-160 3 SET |
| 한국타이어 | 고무 원료 이송 라인 | VM-160 10 SET |
| 미쉐린 타이어(주) | 고무 원료 이송 라인 | VM-160 5 SET |
| 홍아타이어 | 고무 원료 이송 라인 | VM-160 1 SET |
| 동아타이어 | 고무 원료 이송 라인 | VM-160 1 SET |
| 우성타이어 | 고무 원료 이송 라인 | VM-160 1 SET |
| 삼성전자 | 모니터 이송 및 BOX적재 라인 | VM-160 2 SET |
| 진우기계 | 철판 이송 라인 | VACU-BOY 및 RAIL 1 SET |
| (주)금양 | 철판 이송 라인 | VACU-EASYLIFT VM-160 1 SET |
| 제일합섬 | CONVEYOR로 부터 BOX적재 작업 라인 | VM-160 1 SET |
| 동방기업 | CONVEYOR로 부터 BOX적재 작업 라인 | VACU-BOY 2 SET |
| 한국볼트(주) | CONVEYOR로 부터 BOX적재 작업 라인 | VM-160 2 SET |
| (주) 럭키 | 철판 이송 라인 | VACU-EASYLIFT VM-160 1 SET |
| 제주생수 | 생수 용기 PALLET 적재 작업 라인 | VM-160 1 SET |
| 오성 그라스톤 | 타이루 적재 작업 라인 | VM-160 2 SET |
| (주) 진도 | 합판 이송장치 라인 | VM-2160 1 SET |
| (주) S.K.M | TROLLEY를 이용한 FILM 이송 라인 | RAIL 및 HOIST 1 SET |
| (주) 삼양사 | 나이론사 이송 및 적재 라인, 원료 이송 | VM-160 6 SET / VM-180 2 SET |
| 선경 인도네시아 | 나이론사 이송 라인 | VM-160 5 SET |
| (주) 광성판낼 | 패널제품 이송 및 적재 라인 | VM-2160 1 SET |
| (주) 인제패널 | 패널제품 이송 및 적재 라인 | VACU-BOY, VM-2160 각 1 SET |
| 금성전선 | 고무원료 이송 | VM-160 1 SET |
| 한국오웬스코닝 | FRP 원사 롤 이송 | VM-160 3 SET |
| 태광산업 | 나이론사 BOX 이송 라인 | VM-160 3 SET |
| 수석섬유 | 나이론사 이송 라인 | - |
| 풍천섬유 | 나이론사 이송 라인 | - |
| 현대중공업(주) | 철구조물 이송 라인 | - |
| 뉴인텍 | 콘덴서 BOX 이송 라인 | VM-160 1 SET |
| 금호폴리켐 | 고무원료 이송 | VM-160 2 SET |
| 태평양화장품 | 원료 캔 이송 | VM-160 1 SET |
| 대상식품(주) | 기흥공장 포대 이송 | VM-160 1 SET |
| 대상식품(주) | 순창공장 사각캔 이송 | VM-160 2 SET |
| 선교산업 | 사각캔 이송 | VM-160 2 SET |
| 원실업 (티센그룹) | 철판 이송 | VM-160 1 SET |
| 기린산업 | 패널제품 이송 및 적재 라인 | VM-2160 1 SET |
| 풍림화섬(주) | 섬유 박스 이송 및 적재 | VM-160 1 SET |
| 동국무역 | 섬유 박스 이송 및 적재 | VM-160 3 SET |
| 동국합섬 | 섬유 박스 이송 및 적재 | VM-160 3 SET |
| 코오롱제약 | 약품 박스 이송 및 적재 | VM-160 2 SET |
| 한화폴리드리머 | 원료 포대 이송 및 적재 | VM-160 1 SET |
| 한화 | 화약 포대 이송 및 적재 | VM-160 1 SET |
| 하남전자(주) | 알미늄 이송 및 적재 | VM-160 1 SET |
| 캐리어(주) | 에어콘 박스 이송 및 적재 | VM-2160 3 SET |
| 일신화학 | 비닐하우스용 비닐원료 박스 이송 | VM-200 2 SET |
| IPK | 페인트 원료 캔 이송 적재 | VM-160 1 SET |
| 진로 | 소주 제조 원료 포대 지대 투입 | VACU-EASYLIFT VM-160 1 SET |
| 한화폴리드리머 | 천막제조 원료 지대 투입 | VM-160 2 SET |
| 일신화학 | 비닐 생산 제품 포대 출하 | VM-200 2 SET |
| 코오롱제약 | 제품 박스 출하 | VM-160 2 SET |
| 엘지전자 | 에어콘 박스 이송 | VM-200 2 SET |
| 동서유지 | 포대 이송 박스이송 | VM-160 2 SET |
| 대상 | 제품이송 | VACU-EASYLIFT VM-160 6 SET |
| 현대중공업 | 철판이송 | 5 ton / 10 ton |
| 동양철관 | 철판이송 | 16 ton |
| 티센 | 철판이송 | 20 ton |
| 동신중공업 | 철판이송 | 3 ton |
| LG전자 | 제품이송 (에어콘, 세탁기) | VACU-EASYLIFT VM-200 4 SET |
| 이지바이오시스템 | 지대 (사료포대) 이송 | VACU-EASYLIFT VM-160 1 SET |
| 세우 | 지대 (조미료) 이송 | VACU-EASYLIFT VM-160 1 SET |
| 제일모직 | 캔 이송 회전 투여 (사각캔 원형캔) | VACU-EASYLIFT VM-160 3 SET |
| 제일모직 | 인조 대리석 이송 적재 | VACU-EASYLIFT VM-160 3 SET |
| 중원산업 | 합판 가공 이송 적재 | VACU-EASYLIFT VM-180 1 SET |
| 앤스타 | 정수기 생산라인 이송 포장라이 적재 | VACU-EASYLIFT VM-180 1 SET |
| 한국SS | 합판 가공 철도차량 내장재 이송 | VACU-EASYLIFT VM-200 1 SET |
| 도레이새한 | 원료 포대 지대 이송 적재 | VACU-EASYLIFT VM-160 1 SET |
| LG생명과학 | 캔/지대 투여 (크린룸) | VACU-EASYLIFT VM-160 1 SET |
| 코카콜라 | 원료 박스 (3개씩 이송 적재) | VACU-EASYLIFT VM-200 1 SET |
| 롯데기공 | 제습기 박스 3개씩 이송 적재 | VACU-EASYLIFT VM-180 1 SET |
| 쌍용C&B | 롤 화장지 박스 이송 적재 | VACU-EASYLIFT VM-160 1 SET |
| 태광뉴텍 | 비닐하우스 박스 이송 적재 180kg | VACU-EASYLIFT VM-250 2 SET |
| 신젠타 | 농약 박스 말통 이송 적재 | VACU-EASYLIFT VM-160 1 SET |
| 아이스트로 | 제빙기, 아이스크림기기 흡착이송 | VACU-EASYLIFT VM-250 1 SET |
| 신세계 | 의류 박스 물류센터 자동창고 입고 | VACU-EASYLIFT VM-160 8 SET |
| 하림나노텍 | 원료 지대, 포대 흡착 이송 투여 | VACU-EASYLIFT VM-160 1 SET |
| 종근당바이오 | 화이버 드럼 이송 적재 | VACU-EASYLIFT VM-160 1 SET |
| 대웅제약 | 의약품 상품 박스 이송 적재 | VACU-EASYLIFT VM-160 1 SET |
| 국군인쇄창 | 인쇄물 박스 이송 적재 | VACU-EASYLIFT VM-160 1 SET |